7 Bedrooms - Rustic Village - For Sale - A9751ra2064604a
Description
Key features
Building area: 500 sqm
350 sqm residential (3 buildings: A, B, C)
150 sqm stables (Building D)
100 sqm agricultural shed (to be completed)
Land: 20 hectares (16 hectares arable, 3 hectares woodland, vegetable garden, orchard, and gardens)
Semi-inground pool: 4.75 x 11 m with 110 sqm paved solarium
Private access road: 1 km
Description
Nestled in the rolling Sienese hills, between the Chianti and Maremma regions, just a few kilometers from Casole d'Elsa, lies this magnificent estate—a true oasis of peace and well-being. Positioned atop a hill, the property offers breathtaking panoramic views of the surrounding countryside, making it a unique and enchanting retreat.
The estate's history dates back to the Marchesato del Querceto in the 1800s. Once part of a large latifundium, the property was restored in the early 2000s, retaining its historical charm.
The property includes four main buildings:
Building A: a dependance currently used as an office.
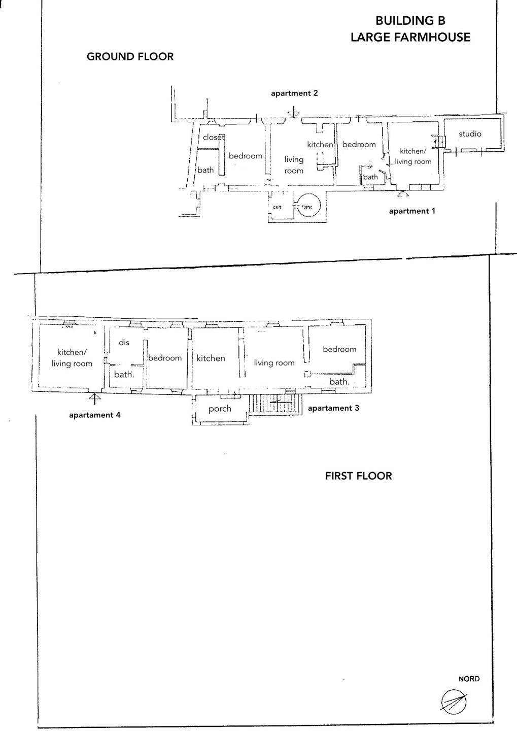
Building B: the main farmhouse on two levels, divided into four independent apartments, each with a kitchen/living room, bedroom, and bathroom. it can be restored as a single-family manor house.
Building C: a smaller farmhouse featuring a rustic room with a bathroom on the ground floor, and a kitchen/living room, two bedrooms, and a bathroom on the upper floor.
Building D: 150 sqm stables.
Additionally, there is a 100 sqm agricultural shed with a roof structure that can be completed.
The 20 hectares of land are divided into 16 hectares of arable land, 3 hectares of woodland, a vegetable garden, an orchard, and manicured gardens surrounding the residential buildings. The semi-inground pool, measuring 4.75 x 11 m with a spacious 110 sqm paved solarium, is perfect for relaxing while enjoying the natural beauty of the surroundings.
Key distances:
Casole d'Elsa: 5 km
Colle Val d'Elsa: 15 km
Monteriggioni: 22 km
San Gimignano: 27 km
Siena: 39 km
Florence Airport: 1 hour
Pisa Airport: 1.5 hours
Energy Class: Not specified
Ref. A9751RA2064604A





























