2 Bedrooms - House Terraced - Tuscany - For Sale - A6292rv2290782a
Description
Main Features:
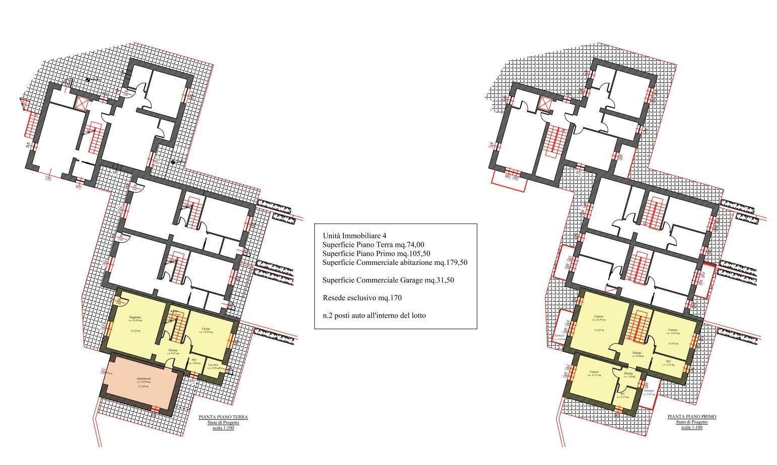
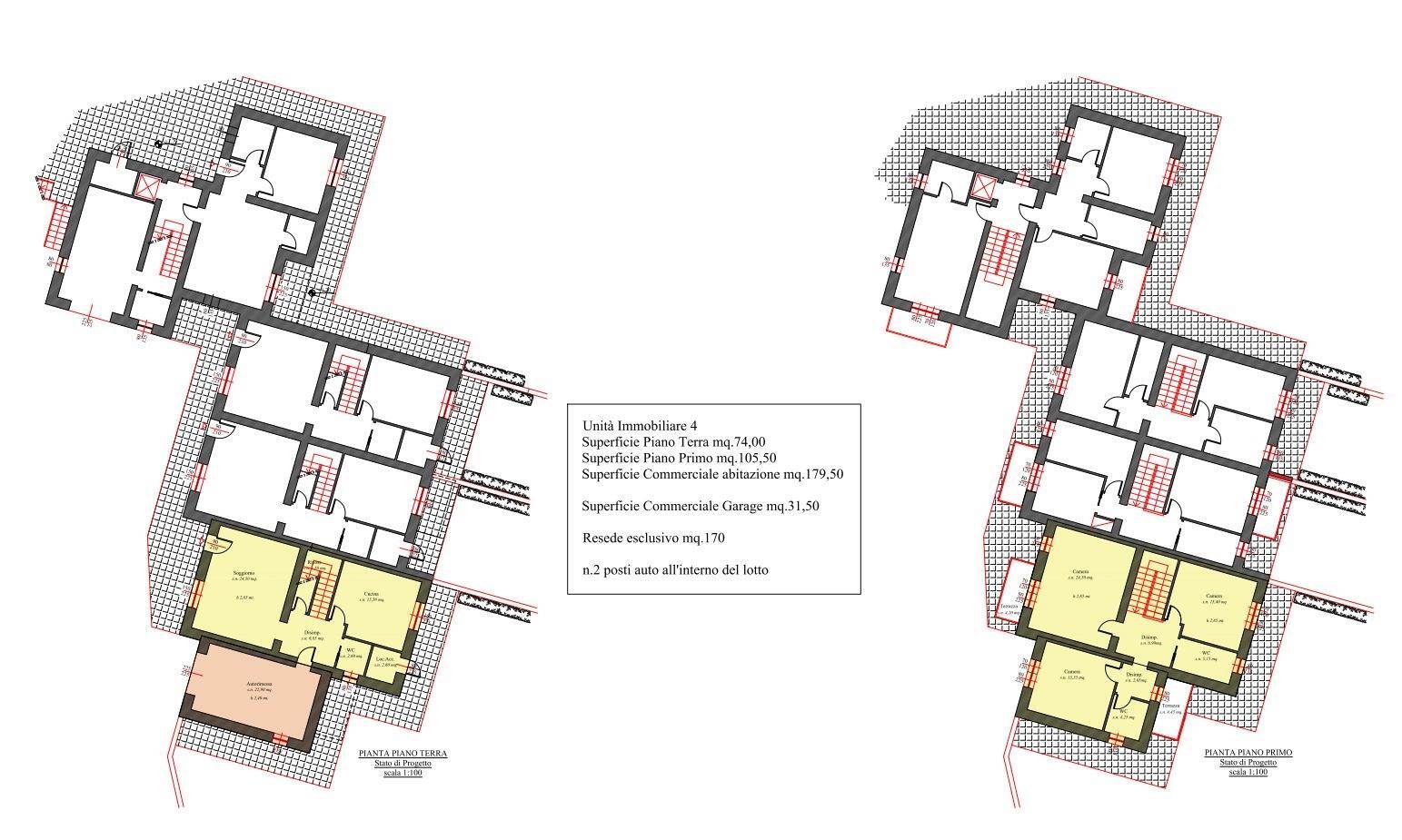
New 182 sqm townhouse spread over two levels
170 sqm private garden and garage connected to the house
3 bedrooms, 2 bathrooms, living room, and kitchen
Covered parking spaces and modern energy-efficient systems
Customizable with a wide range of finishes
interior Description: This newly built townhouse, part of a residential project in Uopini, is spread over two levels and offers approximately 182 sqm of living space. On the ground floor, the entrance leads to a spacious living room, kitchen, a bathroom, and a storage/laundry room. The ground floor also includes a garage directly connected to the house. Upstairs, the sleeping area consists of three bedrooms and two bathrooms, offering plenty of space for privacy and comfort. The home is fully customizable during the construction phase, with the option to choose materials from a wide selection of finishes. The house is equipped with modern systems, including solar panels, a heat pump, underfloor heating, and cooling, ensuring high energy efficiency with an A+ rating.
Exterior Description: The townhouse is surrounded by a large private garden of 170 sqm, perfect for outdoor relaxation. The property also includes two covered parking spaces, providing convenience and protection. The Uopini area is quiet and well-served, with easy access to essential services and the city of Florence, which is about 25 km away.
Distances:
Uopini (center): 1 km
Florence: 25 km
Supermarket: 5 minutes by car
Bus stop: 200 m
A1 Highway: 10 km
Property Reference: A6292RV2290782A

















